购房应规避奇葩户型,提升生活舒适感

  • 上一篇
  • 下一篇
  • 楼盘户型推荐

    ●株洲望云体育新城

    B1户型 四室两厅两卫 建筑面积约149㎡

    户型特点:

    奢阔四房,满足4口之家、3代同堂的舒适居住需求;

    南北双阳台,大开间客厅;

    带独立卫生间主卧,大户室居住标准;

    带入户花园,第一时间亲近自然。

    ◀刷爆朋友圈的神户型

    买房,我们总是希望买到最合心意的,但常常因为工作、距离等客观原因,不能对每个楼盘的情况都了如指掌。株洲晚报房周刊“购房置业”栏目开通,为正在购房置业路上的朋友答疑解惑。哪里的区域值得下手,哪里的板块具有增值空间,哪里的楼盘配套最完善,哪里的房源户型最好,“我”的买房疑问……

    扫码关注“株洲晚报房周刊”官方微信(微信号:fangzhoukan),将您想了解的购房信息发送至后台,我们将热心为您做推荐以及答疑解惑。每周四新鲜房产资讯,与你不见不散!热线:0731—22593711(周记者)。

    ▲望云体育新城B1户型 资料图

    被刷爆朋友圈的神户型位于上海。两室一厅,61633元/平米,总价480万元。这栋房子的介绍为“南北通透,地铁直达,采光无遮拦”。据公开资料显示,该楼盘名叫“五环大楼”,修建于1993年,位于上海长宁区的中心地带——中山公园附近。

    然而,这套房子却有一个很奇葩的特点,那就是卧室B(6平米)是跟主体分开的,中间隔着一条长长的过道连接,总面积不到 78 平米,仅过道就超过 31 平米。不少网友表示看呆了,因为主卧跟次卧隔着一个跑道的节奏!神户型自然也有神评论,有网友配诗:君住长江头,你住长江尾,日日思君不见君,共饮长江水。也有说以后老婆生气都不用回娘家了。

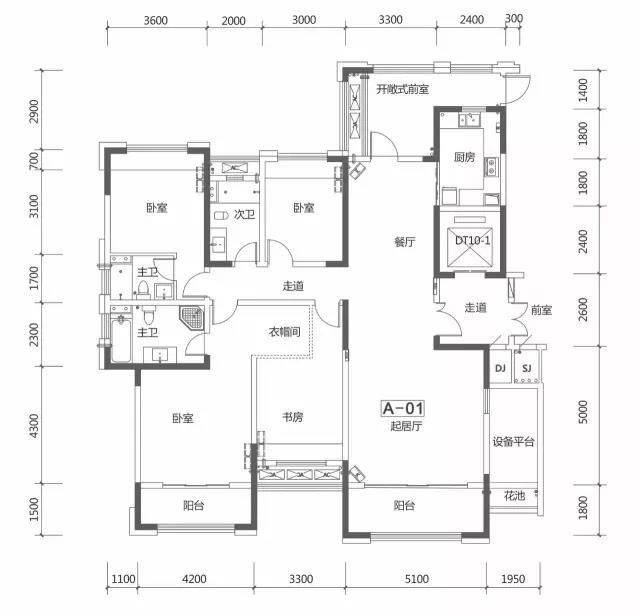
    ●中泰·财富湘江

    A-01户型 四房两厅三卫,建筑面积约195㎡

    户型特点:

    两梯两户平层大宅,双入户大门;

    餐厅与客厅无遮拦连接,阳光洒落,江风拂面,空中庭院式情景生活;

    全赠送超大设备平台;

    独立大书房,总统级主卧,空间大气,自带卫生间、衣帽间;

    南向双瞰江大阳台,占据最佳景观平台,直面一线江景;

    半开放式厨房,方正格局让一切井然有序。

    购房一般会围绕地段、户型、交通设施、配套设施等几个因素展开,房子性价比高不高也主要取决于以上几个因素。房屋的价值很大程度上取决于具体的地段,而合理的户型一定是选房的加分项。最近几天,就有一个户型刷爆了朋友圈,因为户型设计比较奇葩,次卧跟主体房间是分开的,中间用一条长长的过道连接,不少网友表示看呆了!

    业内人士表示,户型不好,不仅实用面积缩小,装修较为困难,以后也难转卖。购房者在买房前一定要挑选合理的户型并实地考察一下,来判断这个房子是否值得购买。

    ▲中泰·财富湘江A-01户型 资料图

    选购户型,尽量规避以下四种户型设计

    业内人士介绍,买房时,购房者要多加挑选,对比各个户型的优缺点,尽量选择较为合理的户型,这样不仅可以增加室内使用面积,也为今后装修提供了便利。除了价格方面的考虑,好的户型也会提升生活的舒适感。除了一些看上去很奇葩的户型,有四种户型设计也需要尽量避开。

    户型整体不方正

    户型整体形状方正不是说整套房子必须是一个完整的长方形或者正方形,而是各个房间方方正正,整套房子看起来是一个大致的方形或者矩形。而那种手枪型、锯齿形等不规则的户型,之所以说它不好,是因为这样的户型存在太多的拐弯,影响房屋的使用面积,后面也会造成家具难选的情况,很多尺寸都不太合适。

    户型采光较差

    我们买房通常讲究“南北通透”,既包括房间的通透,同时也包含光线的通透。有些户型设计存在暗间,暗间除了采光差,通风也较差。而通常这样的暗间会被安排在卫生间,卫生间是最潮湿的房间,不利于家人的健康。但是如果已选购了这样的户型,那卫生间必须装较好的排风设备,及时排除室内的潮气,安装较明亮的灯,另外,卫生间建议铺贴白色的瓷砖,营造明亮的氛围。

    各房间面积分配不合理

    户型设计不合理的另一个表现是各个房间面积分配不合理。如果户型面积在70—130平米之间,主卧面积应该在15—25平米之间,次卧在10—15平米之间,卫生间面积应在4—6平米之间,阳台面积在4—8平米。有些户型阳台因为是半赠送,会比较大,但实际上阳台有承重的要求,不能改造成房间使用,造成面积浪费。

    入户走廊过长

    进入房间之后,需要走很长一段距离才能到达客厅,并且过道很窄,仅仅能用来过人,那么这种户型就比较不合理了。如果是刚需者购入一套70平米的房子,至少有6平米白白浪费掉了。如果过道过长,可以考虑装修时将房间与过道打通,使之变成房间的一部分,增加房间的使用面积。或者过道墙上可以挂一些装饰品,美观时尚的同时消除压抑感。

    (记者 周晓整理)

  • 上一篇
  • 下一篇