农房“株洲范”是什么模样? 12设计方案可免费领取

  • 上一篇
  • 下一篇
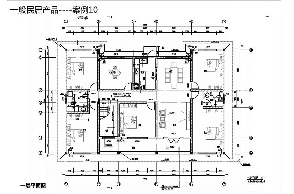
  • 民居产品案例效果图。受访单位供图

    《指南》提供的详细剖面图,可直接用于施工中。受访单位供图

    株洲日报全媒体记者/张威

    近年来,农村变化越来越大,在农村建设住房的人开始增加,一些老旧的房屋也被村民推倒重建,变成一栋栋美丽且坚固的水泥房,而在建筑规划方面并没有严格的要求,导致现在我市部分农村出现了房屋杂乱无章的情况,东一处、西一处很难得到规划,在空间这方面也很难布局。

    近日,市自然资源和规划局推出《农村居民住房建设规划审批指南》(下称《指南》),《指南》将对我市农村建房的规划管理和指导,为农房规划整体风貌,逐步形成具有统一风格的各种特色村落风貌。

    该《指南》参考了多地先进经验,介绍了村民建房控制要点、具体审批事项及工匠能力培养,推出了多种标准图集,并给出参考案例供村民参考使用。具体怎么建,要求有哪些?

    农房怎么建?按这三种风格设计

    《指南》分别从建筑风格、整体风貌提出相关具体建设要求,在农村建房风格控制上,湘东民居风格、新中式风格、现代风格为我市农村建房允许使用的建筑风格,而欧式风格、徽派民居风格、其他民居风格,与我市农村的基调氛围无法融合,故在农村建房审批中禁止使用。

    “为保证整体风貌保持本地特色,为此周边的老镇就成了我们的调研对象。”市资规局相关负责人介绍,在整体风貌控制上,《指南》遵循湘东传统民居风格,故选取了马家河镇、朱亭镇、长沙靖港、醴陵等古镇风貌总结出农村建筑关键“元素”。

    “小到瓦片的用色,大到外墙的用料,农村建房有了规划设计,农村风貌才会更加统一。”上述负责人表示,根据湘东传统民居风格,我市农村建房将在屋顶、砖瓦、墙面等细节做到统一。

    《指南》推荐,湘东民居风格,要以“粉墙黛瓦”为主要特征,主要表现为运用传统的中式建筑元素,例如黑、灰色坡屋顶,浅灰色主体墙面,深色门窗构件,少量深色木材装饰件以及花格窗等传统装饰元素为代表。而新中式风格,采用现代材料和工艺(钢结构、玻璃幕墙、金属瓦等)对中式古典民居进行再创作的建筑风格。主要代表特征表现为,取消传统建筑的繁琐装饰。

    此外,考虑到民居生活水平不一致,居民对建房的品质要求也有不同,《指南》对村民建房标准也有划分等级,并针对不同等级的建房提出相应的控制要求。

    以马家河、朱亭等为基底,拿出12套设计方案

    随着《指南》的发布,多年来,村民建房时不会设计户型、找不到合巧图纸的难题迎刃而解。以马家河、朱亭等老镇为基底,并广泛征求了多地农民的生活需求后,市资规局设计出12套“本土味道”的民居设计方案,附录示意图、户型设计说明、色彩比选示意、设计图纸等,免费送给农民供他们建房挑选,提供样式参考。

    “你看,这是一层普通住宅户型,建筑面积160多平方米,卧室、客厅布局科学,堂屋靠东布置,南北通透,内部空间方正,便于家具的摆放及使用……”市资规局相关负责人告诉记者,12套户型中,多为双层设计,有带地下室和阁楼户型供村民选择,建筑面积从100至300平方米不等。

    房型设计以“多房小间”为导向,体现湘东传统民居粉墙黛瓦特色,兼顾农村人口数、农民实际生活习惯等,基本能够满足较少人口、中型家庭、多代同住等各种需求。房屋设计既考虑适配现代化房屋的干湿分离、通风采光等功能性,也留足了农民刚需的农具专用房、一楼老人房设计等。

    据了解,这批方案基本遵循适用、经济、安全、美观和节地、节能、节材的原则,合理融入本土特色元素,尊重自然肌理和民俗民风,在保留传统、传承文化中塑造特色、留住乡愁。

    记者看到,这套精美图集几乎“拿到即用”,平面图、剖面图上均标注了详细的尺寸,甚至屋顶、楼顶栏杆也有大样图。在“色彩比选示意”中,分别提供了白色、灰色的外观大样,农民一看便知建成效果。

    农房风貌是地域文化的重要载体,也是乡村特色的重要组成部分。我市《农村居民住房建设规划审批指南》将积极引导广大村民科学合理建设住宅,提高建房质量和安全水平,有利于改善农村人居环境,彰显特色风貌;有利于本土文化保护,助推农村人居环境改善和乡村振兴。

    设计方案有了,工匠队伍还待壮大

    “有了这套建房方案,施工队只需要参照执行,不但房子美观,还省钱省心!”近日,醴陵市浦口镇乡村规划师刘丹正拿着这份《指南》和村民介绍,在听取当地村民的建房需求后,大家开始讨论起新房的施工方案。

    近年来,随着广大农村居民对建房需求越来越大,再加上很多老旧的房屋需要修缮,这就使得对乡村建设队伍的要求越来越高。

    目前,农村居民主要重新修缮房屋或新建房屋就两种途径:一是到城里找有资质的建筑公司建房,但是由公司来施工审批手续相对繁琐,再加上专业的设计和施工队伍的管理,这样一来建房成本必然很高,一般村民难以承受。

    二是依托农村本土工匠队伍,农村本地工匠大多很有建房经验,有固定的风貌设计图纸,这样一来很大程度上降低了建房成本,所以农村居民也更青睐本土工匠建房。

    但农村工匠们面临的挑战不小。“现在使用的正规施工图纸在结构、水、电设计上都更完善也更复杂,对于村里的‘老师傅’们来讲,有一定难度。”市住建局相关负责人表示,一方面工匠老龄化严重,导致工匠队伍结构出现劳动力断层,另一方面是工匠的安全、技能培训几乎没有。“不仅要有新设计,还要有‘新’师傅才能建好新房子。”他表示。

    “乡村工匠队伍建设应吸收年轻力量。”上述负责人分析,将来的工匠队伍势必要走年轻化的路子,可以向农村待业青年宣传农村工匠的前景、希望,以及行业的优势所在,吸引他们踊跃加入。

    此外,乡村工匠队伍建设还应注重业务培训,建房是一门技术活,是技术就要学习就要培训,定期开展工匠培训有力保障农村自建房安全,毕竟房屋建设安全是第一关,农村建房更安全才是工匠队伍建设的终极目标。

  • 上一篇
  • 下一篇